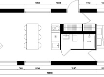
- Размеры: 4 х 12 м.
- Стеновой комплект: клееный брус
- Площадь: 48 м2
- Вместимость: 24 - 32 человек
- Срок изготовления: от 14 дней
- Артикул: 1240
- Хозблок (теплый/холодный)
- Водосточная система
- Обшивка стен
- Свайное поле
от 5 300 100 руб.
от 6 360 120 руб.
-
Возможна индивидуальная
конструкция -
Расширенная гарантия до 30 лет
-
Поэтапная
оплата -
Персональный
менеджер -
Технадзор на
всех этапах
| Ширина: | 4 м. |
| Длина: | 12 м. |
| Скат крыши (ферма): | Двухскатная |
| Стеновой комплект: | Клееный брус |
| Материал кровли: | Фальцевая кровля |
| Столбы (мм.): | 150х150 мм. |
| Стропильная система (мм.): | 190х40 мм. |
| Хозблок: | Нет |
| Отделка стен: | Имитация бруса лиственница |
| Тип остекления: | Тёплое |
| Остекление: | ПВХ REHAU |
| Терраса: | Нет |
| Стандартная высота: | 2.5 м. |
| Название модели: | Домик беседка для дачи №18 |
| Окрас конструкции: | Все элементы конструкции окрашиваются в 2 слоя с промежуточной и финишной шлифовкой. Стандартная краска Teknos Akrylin (цвет на выбор) по каталогу RAL Classic – более 1000 цветов. Масло или другие производители красок – рассчитываются индивидуально. |
Способы оплаты:
Оплатить заказ и услуги вы можете любым удобным для вас способом:
наличными
онлайн-банк
и юридических лиц
После замера и составления точного технического задания мы заключаем договор. Схема оплаты отличается для физических и юридических лиц:
При наличном расчёте оплата производится в 3 этапа:
- Предоплата в момент заключения договора 60%
- 30% при доставке всего комплекта конструкции на объект
- 10% окончательный расчет при подписании акта сдачи приемки (после монтажа)
При безналичном расчёте оплата производится в 2 этапа:
- Предоплата в момент заключения договора 70%
- 30% при подписании акта сдачи приемки
Цена озвучивается под ключ, с учетом проектирования, 3D визуализации, изготовления, окраса, доставки и монтажа.
Бесплатно доставим и установим с гарантией прописанной в договоре
| Стоимость доставки по Раменскому и Московской области | бесплатно |
| Доставка по России | по запросу |
Доставим и установим деревянную конструкцию собственного производства - быстро, качественно, с гарантией.
Все изделия проектируются и изготавливаются индивидуально с учётом ветровой и снеговой нагрузки.
| Сборка и установка | бесплатно |
| Замер в пределах МО | входит в стоимость |
Все элементы постройки окрашиваются в 2 слоя с промежуточной и финишной шлифовкой. Стандартная краска Teknos Akrylin (цвет на выбор) по каталогу RAL Classic – более 1000 цветов. Масло, пропитка или другие производители красок – рассчитываются индивидуально
| Электромонтажные работы, наружная и скрытая проводка. Монтаж фурнитуры | Цена по запросу |
| Проектирование основания под конструкцию, монолитная плита, ленточный фундамент | |
| Детализированный дизайн проект | |
| Разработка конструкции по дизайн проекту от клиента | |
| Барбекю комплекс. Разработка модульного барбекю комплекса с большим наполнением, функционалом и видами отделки | |
| Установка ворот на электроприводе, подъёмные и откатные ворота | |
| Снегозадержатели на различные типы кровли | |
| Устройство греющего кабеля на кровлю и в водосточную систему | |
| Скрытое крепление столбов к основанию | |
| Окрас конструкции любых других производителей красок, в том числе маслами |
как у всех?
Мы реализуем вашу идею!
Создадим индивидуальный проект с нуля
или доработаем существующий под ваши пожелания.
Честно показываем, как мы работаем
Посмотрите похожие проекты
- Площадь:40м2
- Материал:клееный брус
- Размеры:10х4м.
- Столбы:200х200мм.
Стоимость:
от 2920000 руб.
Возможно изменение размера и материалов
- Площадь:132м2
- Материал:клееный брус
- Размеры:22х6м.
- Столбы:180х180мм.
от 7830000 руб.
- Площадь:40.5м2
- Материал:клееный брус
- Размеры:9х4.5м.
- Столбы:180х180мм.
от 1800000 руб.




























































